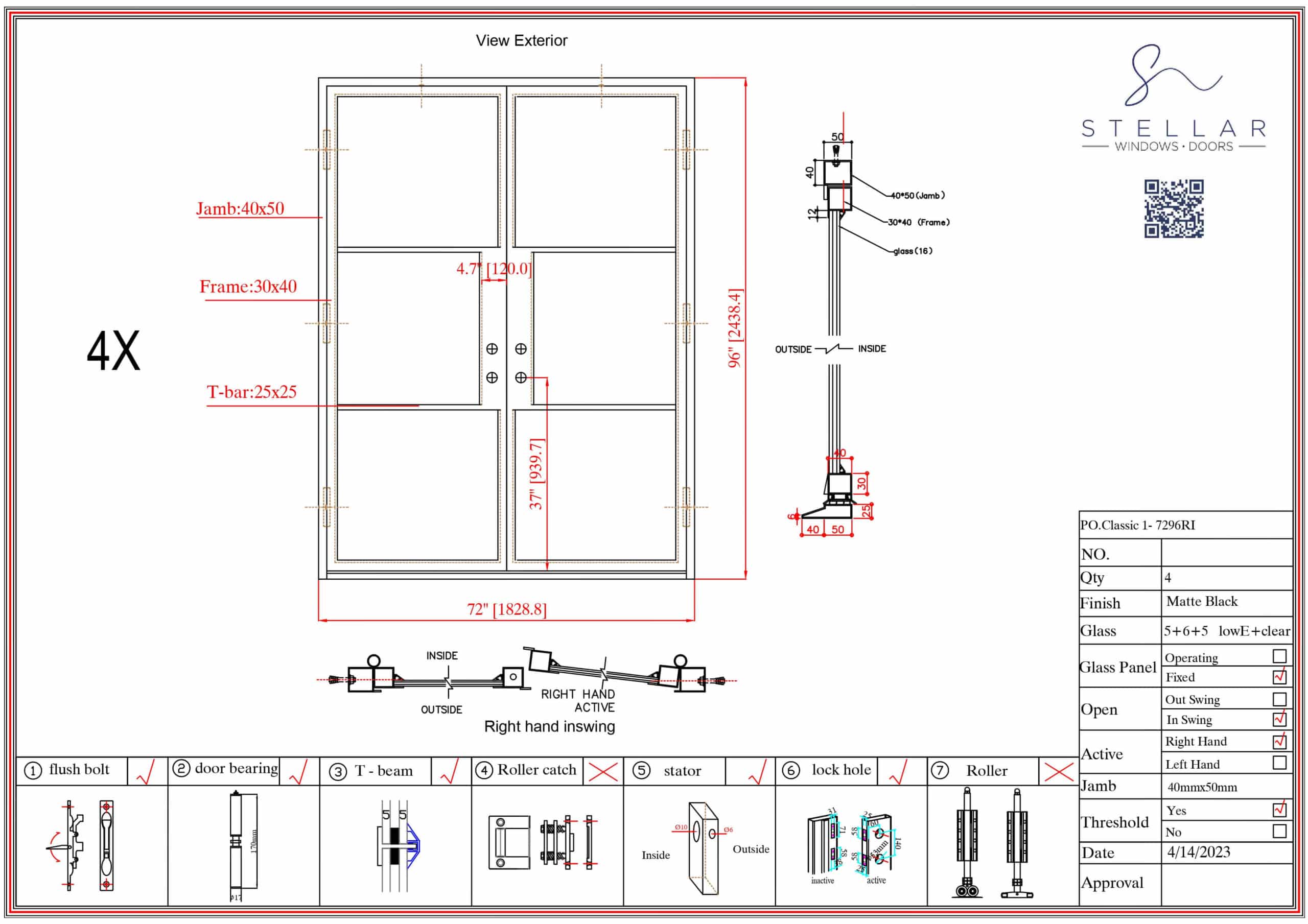
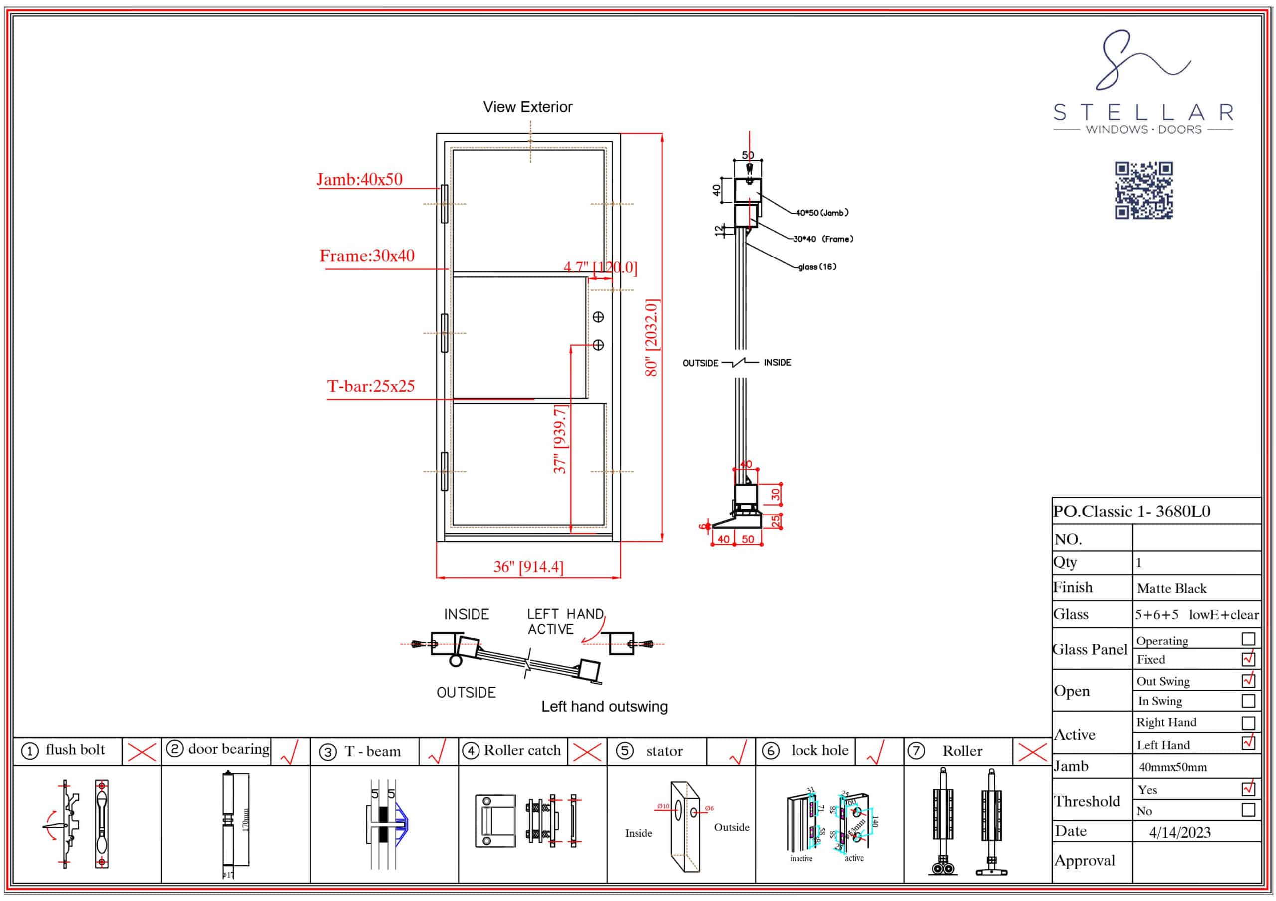
• Classic™
  • Bold™
  • Slimline™
  • Accordions
  • Iron Doors
  • Pivot Doors

Browse:

  • Home
  • STELLAR Classic™
  • Shop Drawings